發表時間:2025/08/25 責任編輯:北極點
紐約新豪宅
50 West 66th Street
重新定義了摩天豪宅的邊界
不僅是居住空間
更是城市文化的載體
PART 1
建筑形態
從地質到雕塑的抽象表達

位于美國紐約市上西區的「50 West 66th Street」項目,近日宣布封頂。該建筑由 Extell Development Company 開發,Sn?hetta 設計,坐落于西 66 街 50 號。該建筑高達 236米,是一座纖細的摩天大樓。
靈感來源
項目設計團隊 Sn?hetta 以曼哈頓地質層與中央公園巖石肌理為靈感,將建筑抽象為“大地雕塑”。
建筑的形態并非簡單的垂直堆疊,而是通過“鑿刻”手法,將建筑體量分割為上下兩部分,形成動態的視覺層次。

△設計示意圖

倒角與切割設計:
建筑南立面在中央位置被切割成兩部分,形成倒角結構。這一設計不僅優化了建筑的風荷載性能,還通過不同角度的玻璃幕墻反射光線,在不同時間呈現流動的光影效果。
垂直窗戶的象征意義:
細長的垂直窗戶貫穿塔身,形成類似“鉆石項鏈”的視覺效果。這些窗戶不僅是采光裝置,更通過其排列密度與間距,暗示曼哈頓天際線的節奏感。

PART 2
材料選擇
自然與工業的對話
建筑底部采用天然石灰石材質,模擬地質層的堆疊感。
石灰石的天然紋理與顏色變化賦予建筑靜態的厚重感,與中央公園的巖石構造形成呼應。
青銅金屬飾面:
塔身與入口區域采用青銅金屬飾面,其冷色調與石灰石的暖色形成對比,為建筑增添未來感。青銅材質的耐候性與抗氧化特性也確保建筑長期保持高端質感。


入口設計同樣通過「鑿刻」和「切片」手法,打造出幾個造型,青銅金屬作為飾面,為整體增添了璀璨的光彩。


玻璃幕墻的科技感:
塔身采用高性能Low-E玻璃,其低輻射特性既能減少室內熱量流失,又通過反射率優化城市熱島效應。玻璃幕墻的垂直排列進一步強化了建筑的纖細感。
PART 3
空間布局
功能性與藝術性的平衡
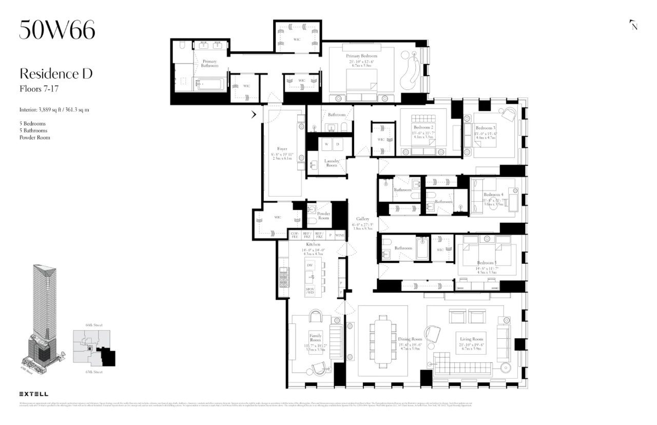
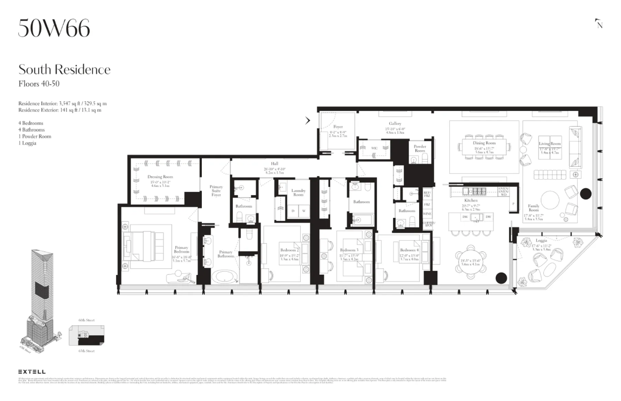
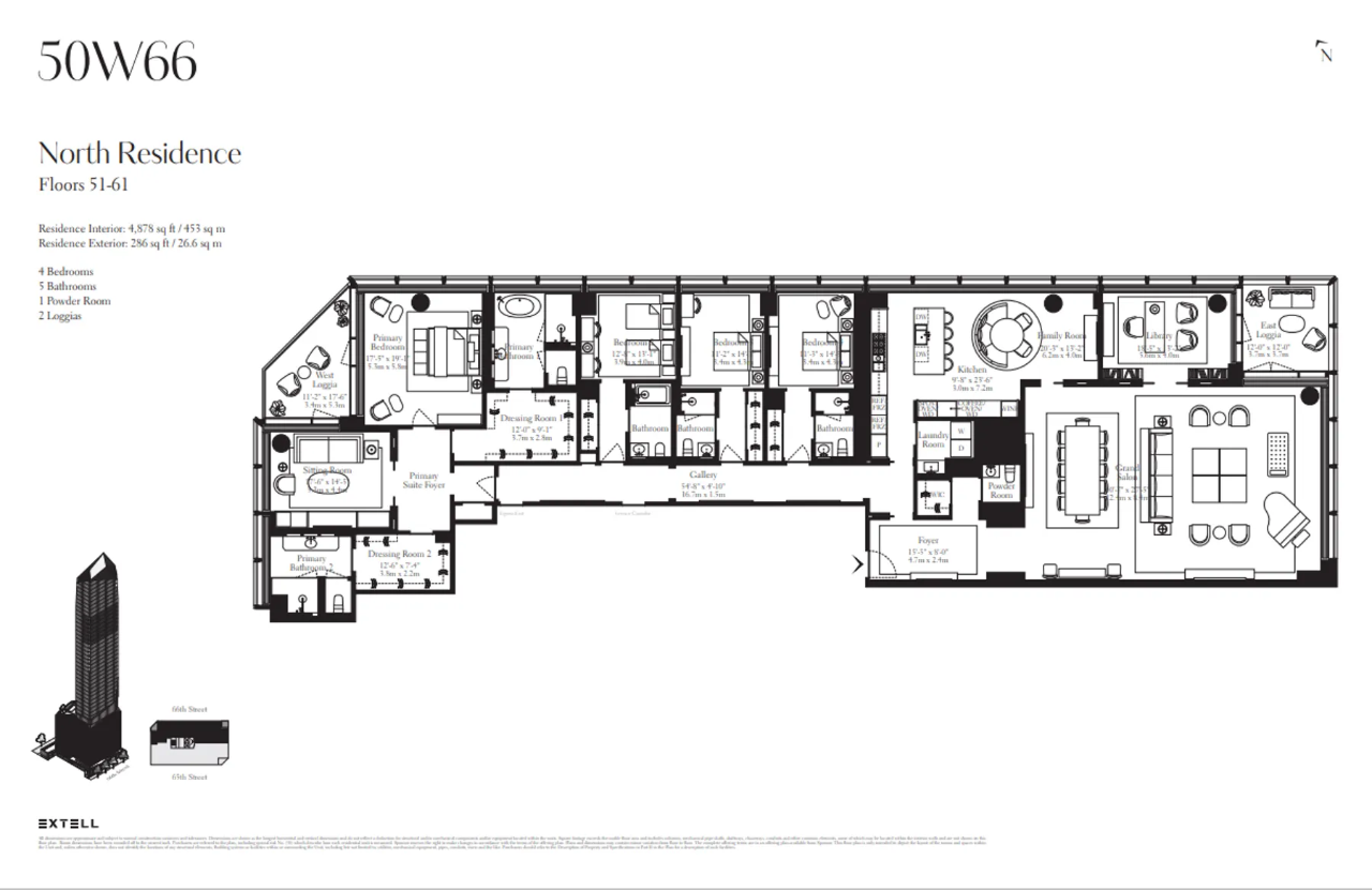
住宅單元設計


開放式布局:所有戶型均采用開放式客餐廳設計,最大化利用自然光線。
雙景視野:部分單元同時朝向中央公園與哈德遜河,通過落地窗與轉角窗設計,實現“一戶兩景”。


全層平層與私人露臺:頂層公寓設全層平層與私人露臺,露臺面積可達數百平方米,提供私密的戶外社交空間。
公共空間設計

△設計示意圖

△露臺平面圖
16樓的公共露臺集合游泳池、草坪露臺與休息區,植被覆蓋率達60%以上,形成城市中的生態綠洲。露臺的植被選擇(如耐旱植物與本地物種)兼顧美觀與可持續性。
PART 4
與環境共生

設計理念
Sn?hetta以“建筑與自然共生”為核心,強調建筑應融入環境而非突兀存在。50 West 66th Street通過材質選擇與形態設計,將建筑本身轉化為城市景觀的一部分。
對細節的極致追求:
景觀整合
建筑南側直接朝向中央公園,部分頂層公寓的270°觀景露臺可將公園景觀引入室內。設計團隊通過錯層設計與轉角開窗,確保每個單元至少擁有一個朝向自然景觀的視野。
社區生態
16樓的公共露臺不僅提供社交空間,還通過垂直綠化改善局部微氣候。露臺的植被設計結合雨水收集系統,實現生態循環。
交通與城市連接
建筑位于曼哈頓上西區的核心地段,步行5分鐘可達中央公園、林肯中心與第五大道。地鐵M1/2/3號線直達,確保居民的通勤效率。
PART 4
與環境共生

景觀整合
建筑南側直接朝向中央公園,部分頂層公寓的270°觀景露臺可將公園景觀引入室內。設計團隊通過錯層設計與轉角開窗,確保每個單元至少擁有一個朝向自然景觀的視野。
社區生態
16樓的公共露臺不僅提供社交空間,還通過垂直綠化改善局部微氣候。露臺的植被設計結合雨水收集系統,實現生態循環。
交通與城市連接
建筑位于曼哈頓上西區的核心地段,步行5分鐘可達中央公園、林肯中心與第五大道。地鐵M1/2/3號線直達,確保居民的通勤效率。
PART 5
EB5新政紅利解析

核心優勢
無排期窗口期:新政下鄉村/高失業區/基建項目簽證預留(20%+10%+2%),目前免排期!
雙遞交政策:投資后直接提交I-526E(移民申請)和I-485(身份調整),90天內獲批工卡+回美證。
資金安全:新政明確投資款 2年可返還,該項目為EB5合規項目,資金優先順位退出。
投資與回報預期
最低投資額:80萬美元(TEA地區),鎖定曼哈頓中央公園旁稀缺資產。
收益預期:
曼哈頓上西區房價年均增值率3%-5%,未來十年有望突破千萬美元門檻。
租金回報率預計達3%-4%。
公寓戶型圖








